modern atelier

photograph photograph photograph photograph photograph photograph photograph photograph photograph photograph photograph photograph photograph photograph plate plate plate plate plate plate plate
Carmélites
2023.Brussels

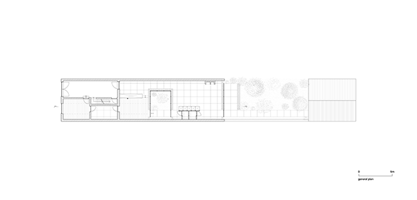
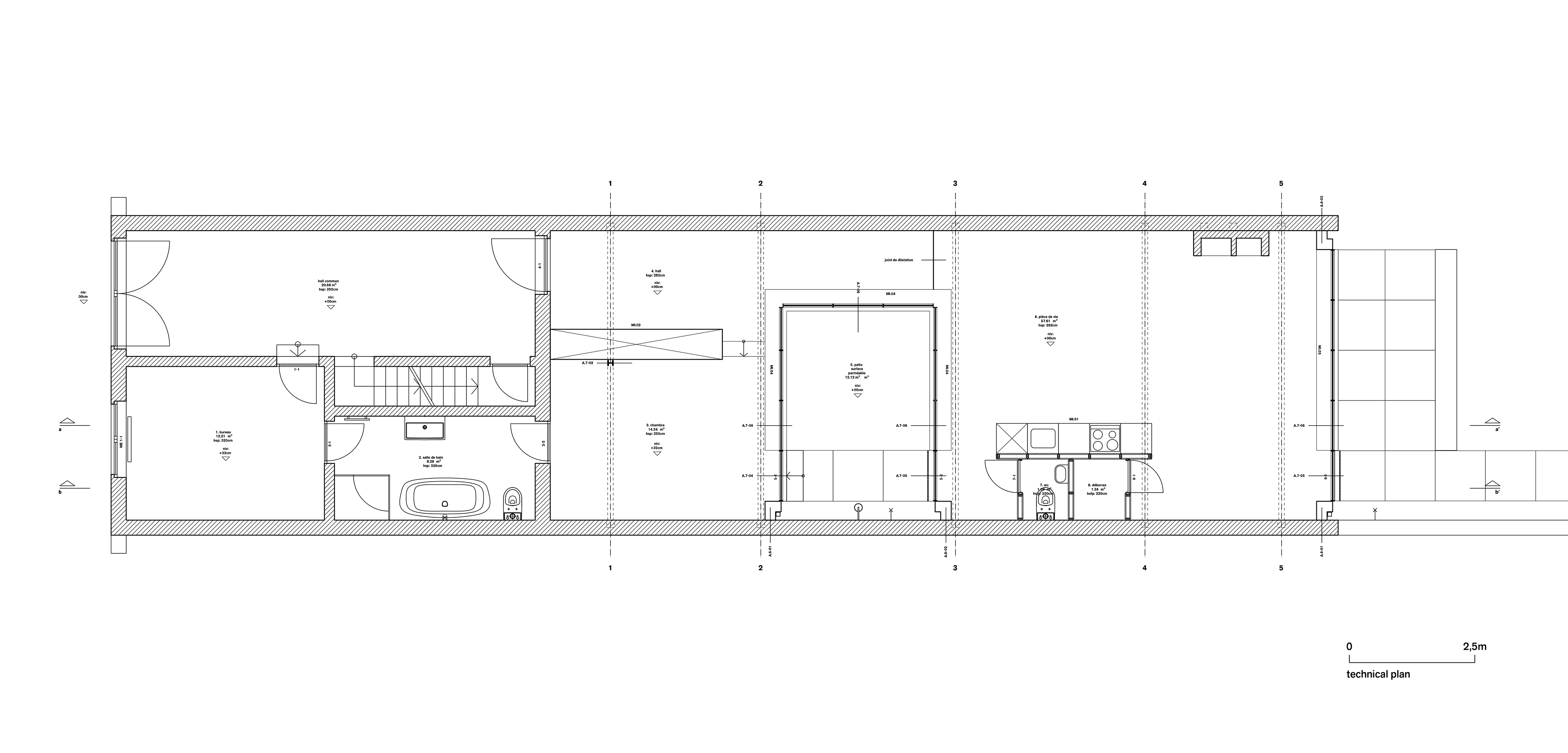
Renovation project with the adaptive reuse of a first floor formerly used as office space to convert it into an apartment.

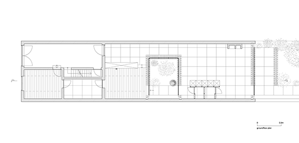
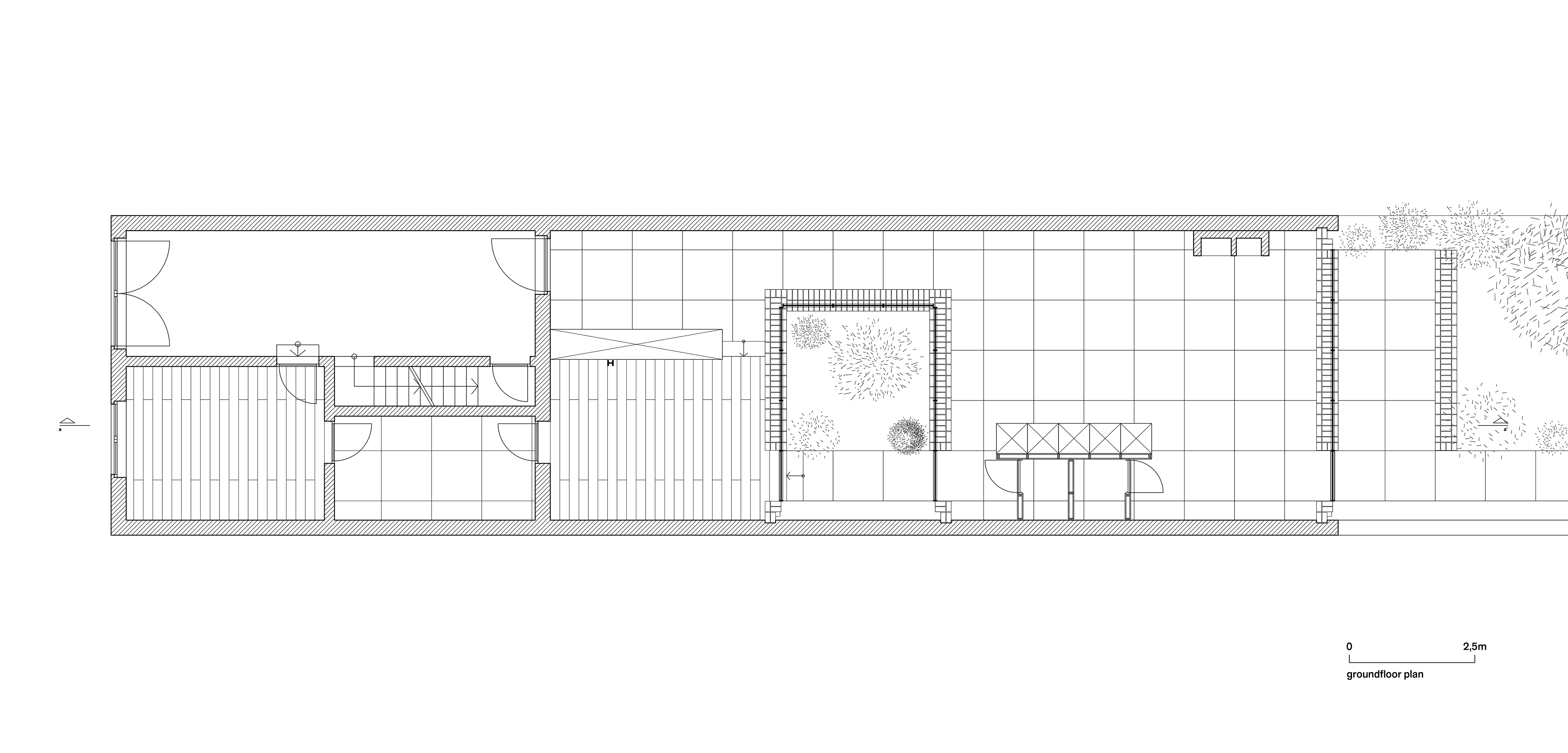
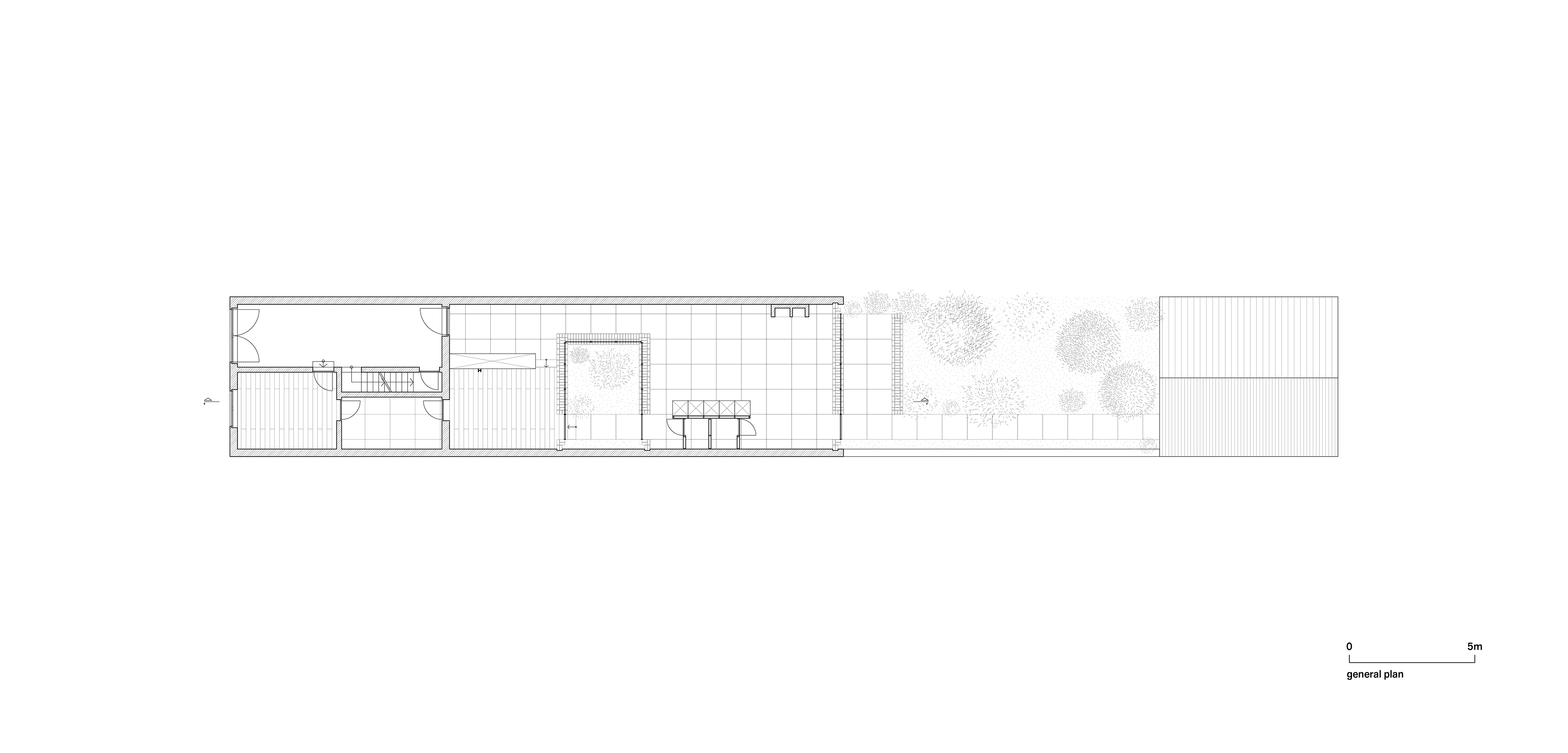
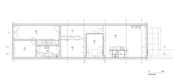
A patio is created i nthe center of the main room to bring light into the new bedroom and living space. The project follows a completely open plan articulated around the patio - resolving the space problem. The south facing facade is completely opened towards the existing garden and back building.

The project follows a 100cm square module except for the existing five supporting steel beams. The materials are left exposed wherever possible. The main materials used are steel for the structure and windows; brick for the walls and retaining walls, belgian blue stone for the floor, oak for the kitchen block and doors, and walnut for the windows sills and main bedroom warbdrobe.

The project is composed as follows; an office on the north side, street side, with an independent entrance on the common entrance hall. Between the office and the bedroom there is a large bathroom accessible from both sides. The bedroom opens on one side to the new patio and on the other side to the bathroom. The rest of the plan is an open plan with a single large living area that opens onto the patio on the north side and the garden on the south side.


Photography: Séverin Malaud